天天奋斗  天天快乐

团结合作 务实创新 开放进取 科学高效

 
当前位置: 首页 >> 新闻动态 >> 通知公告 >> 正文

商铺招租公告

2025年09月22日 16:12  点击:[]

一、项目位置及情况

渭南师范学院朝阳校区和富平校区各有几间商铺面向社会招租,商铺的基本情况如下:

朝阳校区老超市楼一层共两间,位于朝阳校区1号学生公寓楼南2号公寓楼东,分别是:

1.楼梯拐角口裁缝铺一间,坐北朝南,面积约8

2.一楼北侧面朝北商铺一间,面积约17㎡。

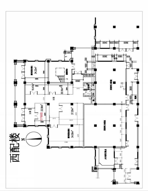
富平校区实验实训楼一层共三间商铺,编号分别为02、03、07号,每间商铺的位置和面积情况为(各商铺位置建筑示意图附后)

1.02号商铺位于富平校区实训楼东配楼一层,面积53.36

2.03号商铺位于富平校区实训楼东配楼一层,面积20.48

3.07号商铺位于富平校区实训楼西配楼一层,面积23.56

二、经营范围

1.拟开展的经营活动必须是受法律保护的合法项目,不得经营洗浴、歌舞厅、网吧等影响住户正常生活的项目。

2.鉴于校区商业网点现有的经营项目以及面向为师生服务需求,为避免恶性竞争,本次招租的商铺不得经营的项目为:超市、驾校、餐饮等。朝阳校区老超市楼梯拐角口商铺经营范围限定为裁缝铺。

三、对承租人基本要求

意向承租方为企业法人的应具备独立法人资格,具有良好的法人资信。承租方必须在资产公司规定经营范围内经营,未经资产经营公司批准不得随意变更经营项目,不得转让、转包、转租,竞标者中标后经营法人必须和竞标投标人一致。经营场所进行改造、装修,需向资产经营公司报备改造方案,经公司同意后方可实施。装修时不得破坏项目内建筑物的主体结构,并应严格执行消防规范,以免造成安全隐患(其他要求具体协议在《房屋租赁合同》中另行约定)。

四、承租方式报价

1.有承租意向的单位携带营业执照到渭南师范学院资产经营有限公司登记报名。本公告不设期限,公告发布后即开始报名,先报先得,招完为止。

2.本次招租由公司组织会议采取竞争性谈判方式进行。每间商铺的开标时间为首家拟承租人报名后满十个工作日进行,由公司办公室通知。

3.投标报价按面积单位报价,即每平米多少元报价,年租金按10个月计算,租金报价高者

、报名地点及时间

报名地点:渭南师学朝阳校区留学生中心楼109室

联系电话:0913-2133097  

人:老师(朝阳校区13572723323

尚老师(富平校区15591389006)

 

渭南师院资产经营有限责任公司

                                          2025年9月22日

附:富平校区商铺建筑结构示意图

 

 

 

 

上一条:渭南师范学院直饮水水质检测报告公示 下一条:渭南师范学院审核评估应知应会手册

关闭

Copyright 2020 资产经营有限责任公司(大学科技园) 版权所有 陕ICP备05010978号 大唐设计 技术支持